Woonoppervlakte
Circa 130 m²
Perceeloppervlakte
Circa 525 m²
Bouwjaar
Gebouwd in 1938
Aantal kamers
6 kamers (5 slaapkamers)

Rijneveld 18

2771 XT, Boskoop (Zuid-Holland)

Bent u op zoek naar een ruime en sfeervolle woning in een groene, rustige omgeving? Dan is deze prachtige 2-onder-1 kapwoning aan het Rijneveld 18 in Boskoop echt iets voor u! Met een woonoppervlakte van maar liefst 130 m² en maar liefst 5 slaapkamers en 2 garage's biedt deze woning voldoende ruimte voor het hele gezin.

De woning ligt aan het water, in een rustige en groene buurt in Boskoop, bekend om de sfeervolle omgeving en uitstekende voorzieningen. Op korte afstand vind je diverse winkels, scholen en horecagelegenheden. De bereikbaarheid met het openbaar vervoer is prima, met een nabijgelegen treinstation en diverse buslijnen. Ook met de auto ben je snel op de uitvalswegen richting onder andere Amsterdam, Utrecht, Den Haag en Rotterdam.

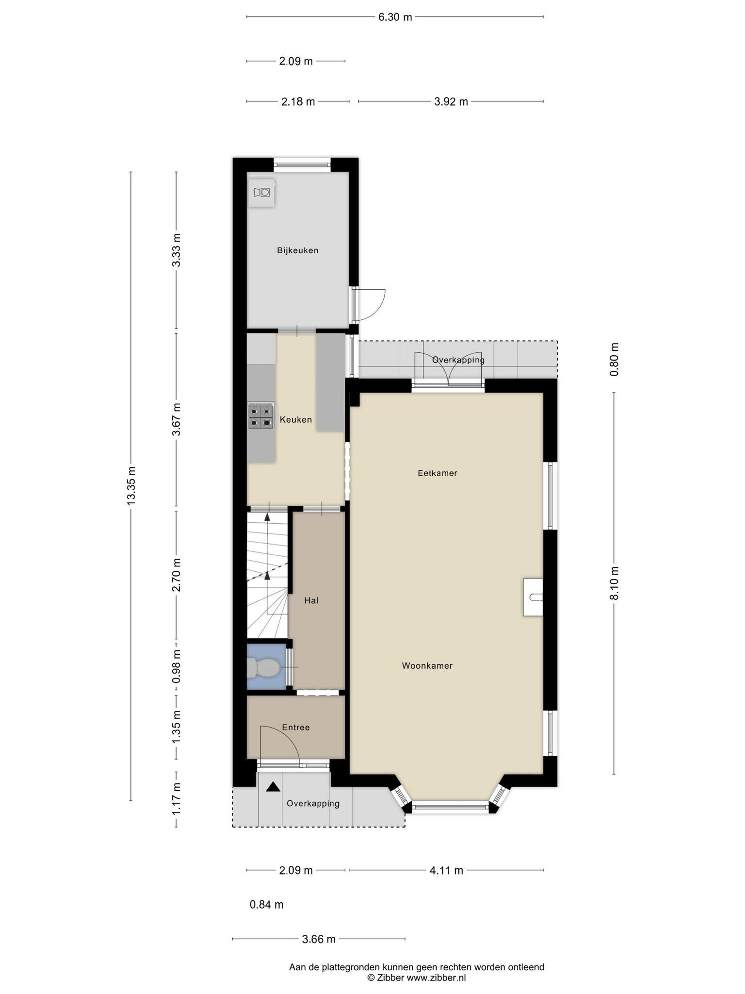
Indeling:
Begane grond:
Bij binnenkomst wordt u verwelkomd in een lichte en gezellige woonkamer, die naadloos overgaat in de half-open keuken. De woonkamer is een ideale plek voor het creëren van mooie herinneringen met familie en vrienden. Dankzij de grote ramen geniet u hier van veel natuurlijk licht en een prachtig uitzicht op de zonnige voor- en achtertuin. Een houtkachel zorgt voor extra sfeer. De ruimte is meer dan royaal genoeg voor een sfeervolle zithoek en grote eethoek.

De half-open keuken is uitgerust met moderne apparatuur en biedt voldoende ruimte om uw culinaire vaardigheden te benutten.

Naast de woonkamer en keuken treft u een praktische bijkeuken aan, compleet met een aansluiting voor de wasmachine. Dit maakt het dagelijkse leven niet alleen comfortabeler, maar houdt ook uw woonruimtes netjes en opgeruimd.

De kelder die bereikbaar is vanuit de keuken biedt tal van mogelijkheden, denk bijvoorbeeld aan een wijnkelder of extra opbergruimte.

1e verdieping:
Op de eerste verdieping vindt u drie ruime slaapkamers en een complete badkamer. De badkamer is voorzien van een ligbad, douche, wastafel en een tweede toilet, waardoor het gezin gebruik kan maken van deze voorzieningen zonder te hoeven wachten. Of u nu wilt ontspannen in het ligbad of zich snel wilt opfrissen onder de douche, deze badkamer biedt u de ruimte die u nodig heeft.

2e verdieping:
De tweede verdieping van de woning is een echte verrassing, met nog eens twee slaapkamers en toegang tot een ruime bergzolder. De aanzienlijke hoogte maakt deze ruimte ideaal voor opslag of zelfs als speelruimte voor de kinderen.

Buitenruimte:
Maar dat is niet alles! De riante voor- en achtertuin zijn een absolute aanvulling op deze woning. Met een prachtige zonligging kunt u hier heerlijk genieten van de buitenlucht, genieten van een kopje koffie in de ochtendzon of een gezellige barbecue organiseren met vrienden en familie. De achtertuin beschikt over een handige berging, perfect voor het opruimen van uw tuingereedschap of fietsen.

Bijzonderheden:
- 2-onder-1 kapwoning gelegen aan het water
- 2 garage's (recht van overpad)
- 5 slaapkamers
- ruime kelder
- bergzolder
- prachtig gelegen
- nabij alle voorzieningen

Met de combinatie van ruimte, comfort en een sfeervolle uitstraling, is deze 2-onder-1 kapwoning aan het Rijneveld 18 in Boskoop een uitstekende keuze voor elk gezin. Aarzel niet en plan snel een bezichtiging om deze woning met eigen ogen te ervaren. Het kan zomaar uw nieuwe thuis worden!

Plattegronden

Overdracht

Koopsom
€ 595.000 k.k.
Status
Verkocht
Aanvaarding
In overleg

Bouw

Object type
Eengezinswoning, 2 onder 1 kapwoning
Soort bouw
Bestaande bouw
Bouwjaar
1938
Soort dak
Zadeldak

Oppervlakte en inhoud

Woonoppervlakte
130 m²
Perceeloppervlakte
525 m²
Inhoud
506 m³
Overige inpandige ruimte
13 m²
Externe bergruimte
40 m²
Gebouwgeb. buitenruimte
7 m²

Indeling

Aantal kamers
6 kamers (5 slaapkamers)
Aantal badkamers
1 badkamer
Badkamervoorzieningen
Ligbad, toilet, douche, wastafel
Aantal woonlagen
5 woonlagen

Energie

Energielabel
C
Energielabel registratie
22-07-2025
Isolatie
Dakisolatie, vloerisolatie, dubbel glas

Buitenruimte

Ligging
Aan water
Tuin
Achtertuin, voortuin, zijtuin
Afmetingen achtertuin
221 m² (17 meter diep en 13 meter breed)
ligging tuin
Gelegen op het noorden

Garage

Soort garage
Garagebox
Capaciteit
2 auto's

Parkeergelegenheid

Soort parkeergelegenheid
Op eigen terrein

Energieverbruik in Boskoop

Energielabel deze woning

Energielabel C

Publicatie energielabel: 22-07-2025

Stroomverbruik per jaar

3390 kWh

(Gemiddelde twee onder een kap in Boskoop)

Gasverbruik per jaar

1460 m³

(Gemiddelde twee onder een kap in Boskoop)

* Cijfers zijn afkomstig van het CBS en bedoeld als indicatie en kunnen verschillen voor deze woning

Indicatie hypotheeklasten

Eigen inleg:
Spaargeld / overwaarde

Rente:
Laagste 10-jaars rente

Laagste 10-jaars rente

2,75% - Centraal Beheer Groen... - NHG


3,05% - Centraal Beheer Groen... - 80%

Laagste 20-jaars rente

3,23% - Argenta Groen Hypothee... - NHG


3,44% - Argenta Groen Hypothee... - 80%

Laagste 30-jaars rente

3,4% - Argenta Groen Hypotheek... - NHG


3,61% - Argenta Groen Hypothee... - 80%


Hypotheek:

Bruto maandlasten: € 0 p/m

Netto maandlasten: € 0 p/m

Hoe berekenen we dit?

Het rentepercentage is gebaseerd op de laagste 10-jaars vaste rente voor één hypotheekdeel. De vermelde rente (3.05% zonder NHG) is gecontroleerd op 17-10-2025. Deze berekening is gebaseerd op een annuïteitenhypotheek die volledig wordt afgelost, waarbij de maandlasten gedurende de gehele looptijd gelijk blijven. De werkelijke rente en netto maandlasten kunnen variëren, afhankelijk van uw persoonlijke situatie en de hypotheekverstrekker. Raadpleeg een financieel adviseur voor een nauwkeurige berekening en advies. Aan deze berekening kunnen geen rechten worden ontleend; het dient enkel als indicatie.

Documentatie

Kadastrale kaart

Leefomgeving

Plattegronden PDF

BAG uittreksel

Aanslag gemeentebelastingen

Eigendomsbewijs

Lijst van zaken

Bekijk onze website

Zonnegrenzen bekijken

Op de kaart

Inwoners in Boskoop

Cijfers voor postcodegebied 2771

Totaal aantal inwoners
16130 inwoners
Mannen
50%
Vrouwen
50%

Inwoners in Boskoop

Cijfers voor postcodegebied 2771

tot 15 jaar
16%
15 tot 25 jaar
13%
25 tot 35 jaar
24%
45 tot 65 jaar
28%
65 en ouder
20%

Huishoudens in Boskoop

Cijfers voor postcodegebied 2771

Eenpersoons zonder kinderen
33%
Meerpersoons zonder kinderen
32%
Huishoudens zonder kinderen
65%

Huishoudens in Boskoop

Cijfers voor postcodegebied 2771

Huishoudens met één kind
6%
Huishoudens met meerdere kinderen
29%
Huishoudens met kinderen
35%

Woningen in Boskoop

Cijfers voor postcodegebied 2771

Woningen voor 1945
19%
Woningen tussen 1945 en 1965
13%
Woningen tussen 1965 en 1975
20%
Woningen tussen 1975 en 1985
19%
Woningen tussen 1985 en 1995
10%

Woningen in Boskoop

Cijfers voor postcodegebied 2771

Woningen tussen 1995 en 2005
9%
Woningen tussen 2005 en 2015
6%
Woningen na 2015
5%
Huurwoningen
40%
Koopwoningen
60%

Overige in Boskoop

Cijfers voor postcodegebied 2771

Gemiddelde WOZ waarde
€ 263.000,-
Personen onder de 65 met uitkering
5%

Overige in Boskoop

Cijfers voor postcodegebied 2771

Adressen per km²
889
Stedelijkheid (schaal 1 op 5)
40%
Postcode kaart 2771 Gemeente kaart alphen aan den rijn

Korte feiten over Boskoop

Boskoop (uitspraakⓘ) is een plaats in Zuid-Holland, die gelegen is aan (gekanaliseerde) rivier de Gouwe tussen Alphen aan den Rijn en Waddinxveen. Tot 1 januari 2014 was het een zelfstandige gemeente, per die datum is ze opgegaan in de fusiegemeente Alphen aan den Rijn. Op 1 januari 2023 had Boskoop een inwoneraantal van 16.670.

Indien u vragen heeft of u wilt een bezichtiging inplannen, dan kunt u gebruik maken van het formulier hiernaast. Er zal daarna op korte termijn contact met u worden opgenomen.

Euromarkt 3

2408 BA, Alphen aan den Rijn

0172 - 234 406 info@houtmandevogel.nl www.houtmandevogel.nl

Over Houtman & de Vogel

Bent u van plan om uw woning te verkopen? Zoek niet verder! Bij Houtman & de Vogel profiteert u van ervaren makelaars met uitgebreide kennis van de lokale woningmarkt. Ons doel is om de best mogelijke verkoopprijs en voorwaarden voor onze klanten te realiseren. Benieuwd hoe we dat doen? Maak een afspraak en ontdek wat wij voor u kunnen betekenen.

Ons kantoor is gevestigd op de Euromarkt 3 in Alphen aan den Rijn. Het heeft een professionele uitstraling en is voorzien van opvallende tv-schermen in de etalage waar uw woning wordt gepresenteerd. U kunt ons eenvoudig bereiken en er is gratis parkeergelegenheid voor de deur!

Houtman & de Vogel staat bekend om zijn actieve en resultaatgerichte aanpak, gekenmerkt door een no-nonsense mentaliteit. Wij zijn 6 dagen per week en 16 uur per dag bereikbaar. U kunt bij ons terecht voor bezichtigingen of een (gratis) waardebepaling, niet alleen tijdens kantooruren, maar ook in de avonduren en op zaterdag.

Over Houtman & de Vogel
Reviews Houtman & de Vogel Makelaardij

Rijneveld 18, Boskoop

€ 595.000 k.k. - Verkocht

Helaas, deze woning is verkocht!

Net te laat, deze woning is al verkocht. Laat een zoekopdracht bij ons achter zodat wij u direct kunnen helpen wanneer er nieuw aanbod beschikbaar komt.